
Luxury apartments / penthouses for sale in the district Chaillot
via bellesdemeures
Price
3 950 000 €
Surface
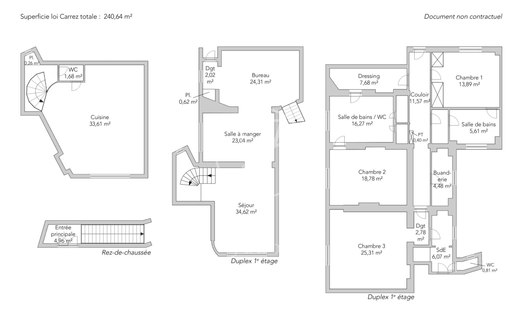
240.64 m²
Price/m²
16 415 €/m²
Floor
—
Details
- Rooms
- 6
- Bedrooms
- —
- Bathrooms
- 2
- Balcony
- No
- Terrace
- No
- Elevator
- Yes
- Parking
- —
- Cave
- Yes
- Renovation
- newly_remodeled
Distances
ISP Middle (Francesco)
45 rue Cortambert
21 min walk · 15 min transit
ISP Primary (Sofia)
96 rue du Ranelagh
35 min walk · 19 min transit
Work
Place de la Bourse
61 min walk · 28 min transit
Description
In a beautiful Haussmannian building on Avenue Foch, this exceptional 240.64 sq m (Carrez Law) apartment has been completely redesigned by architect Pierre Yovanovitch. The entrance opens onto an elegant gallery leading to a spacious, light-filled living room with unobstructed views of the avenue's trees. A separate dining room and an office complete the reception areas. The furniture in the living room and dining room, as well as the headboards, are by Maison Bentley, lending the entire apartment a particularly high-end feel. The sleeping area comprises three suites. The master suite features a dressing room and a bathroom. The two other bedrooms each have their own shower room. One of them, accessible via a service entrance, offers welcome privacy. On the lower level, a spacious eat-in kitchen opens onto a private landscaped garden designed by Camille Muller, offering complete privacy. The apartment benefits from full soundproofing and quadruple-glazed windows. It features central gas heating and individual hot water. A rare property combining period charm with top-of-the-range contemporary amenities.
Comments
Added 4h ago · Updated 3h ago